
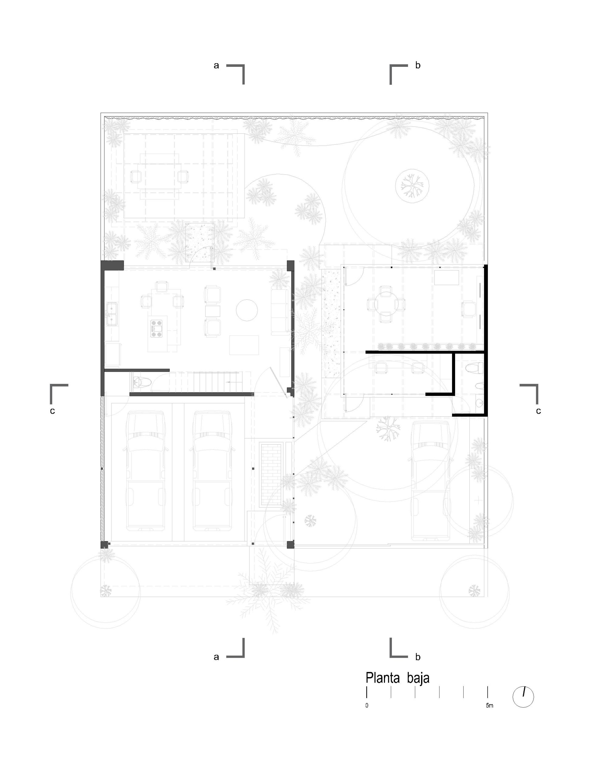
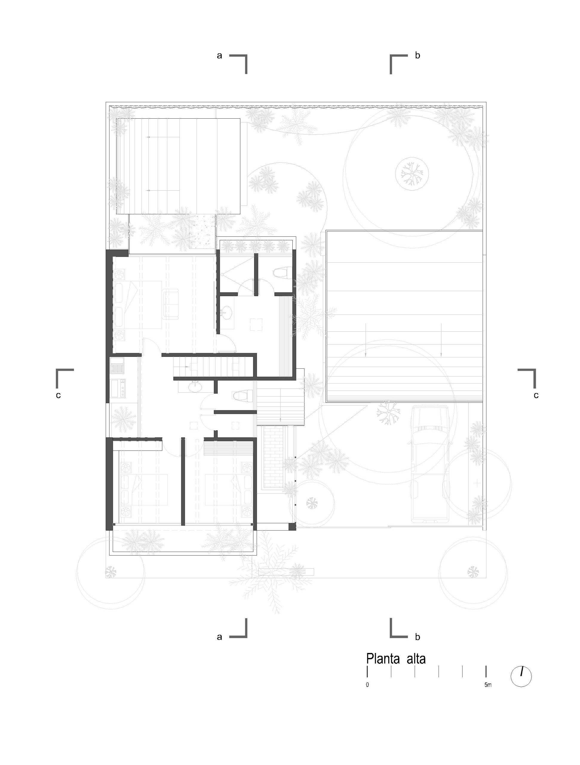
La Casa-Estudio Helechos fue diseñada como un jardín donde la arquitectura aprovecha la orientación sur para proteger la privacidad de los espacios y regular la incidencia solar, manteniendo su fachada cerrada al exterior confinando una jardín habitable y protagonista. La vegetación es tomada como el acabado final en todas las superficies y habitaciones aprovechando sus atributos climáticos que genera.
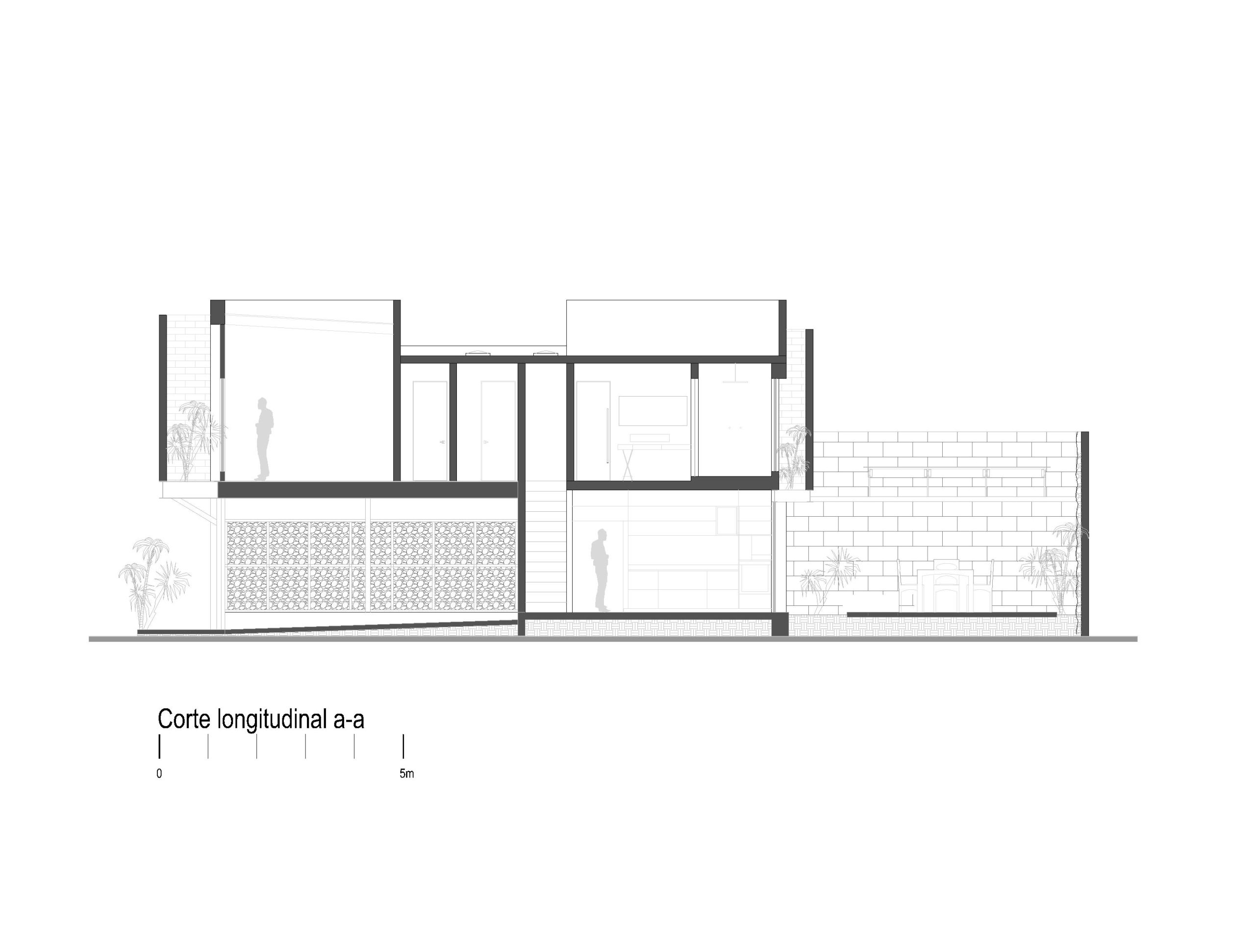
Desde el interior, cada espacio se conecta a los jardines que filtran la luz natural y generan un ambiente iluminado y fresco. Para el estudio, una Amapa morada enmarca el ingreso al espacio, mientras una jacaranda define el remate visual posterior.
La combinación de sistemas constructivos incluye acero, concreto, tabique rojo, block gris, madera de pino y cristal, materiales que se integran en una propuesta arquitectónica eficiente y estética. Este enfoque garantiza no solo la durabilidad y el rendimiento del proyecto, sino también su conexión visual y sensorial con el entorno. La madera juega un papel fundamental en la escala vertical, cerrando los espacios y sirviendo como acabado final que aporta calidez al diseño. Laminas galvanizadas componen la cubierta, optimizada con una capa de poliuretano de 1 pulgada para reducir la transferencia de calor al interior, asegurando un ambiente confortable incluso en climas cálidos.
Arquitectura: Raúl Diego Cervantes
Terreno: Frente 7.85 m x 20.06m de largo.
Año 2022
Superficie construida: 199m2
Tipología: Casa Habitación/Privada
Construccion: Esarquitectura S.A de C.V
Calculo estructural: Asunción Martin
Fotografía: Diego Cervantes
Ubicación: Guasave, Sinaloa.













