
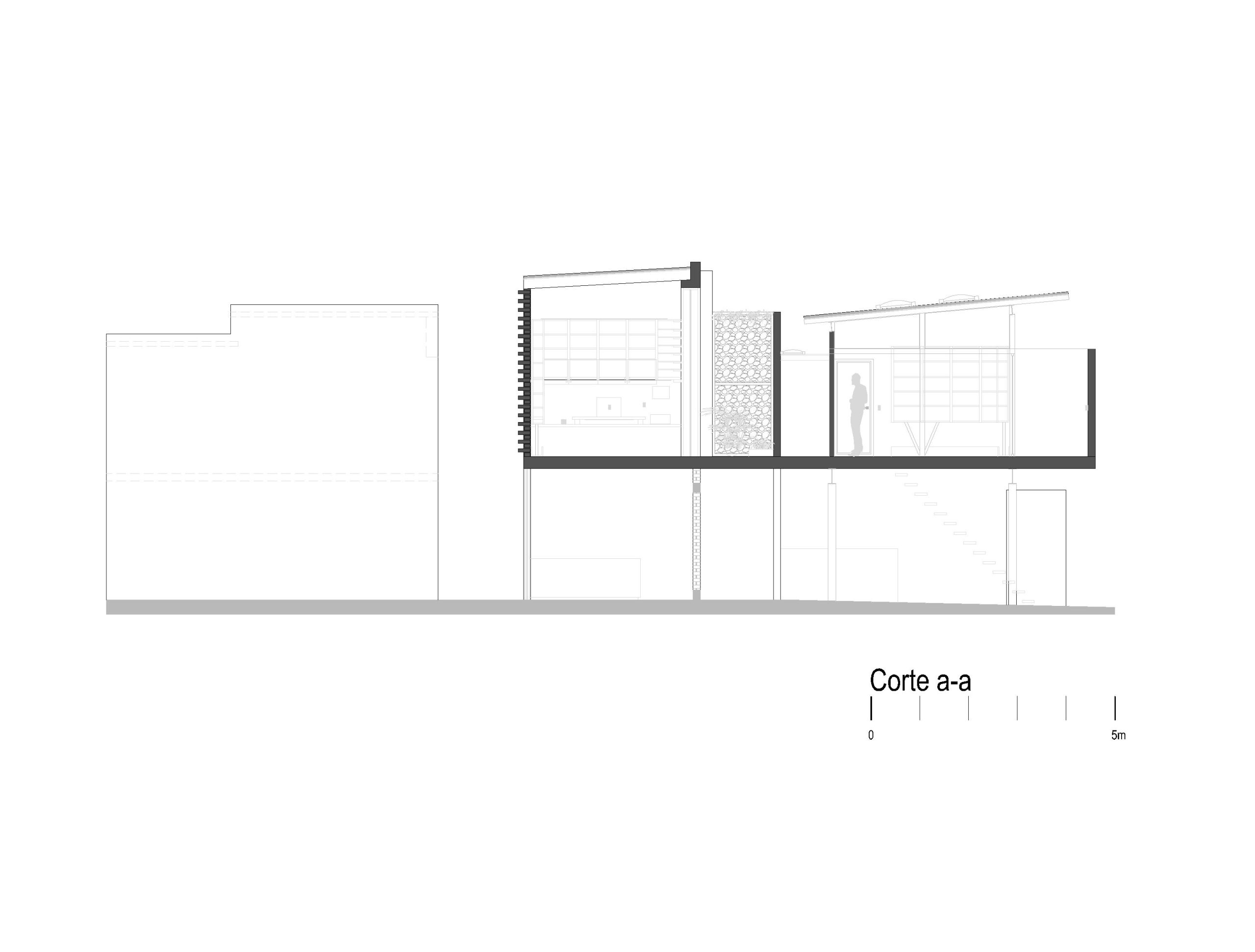
Taller Esarq surge como un ejercicio de exploración los materiales, expuestos en su estado natural para resaltar su expresión y envejecimiento. Los muros de tabique, concreto y acero fueron trabajados sin recubrimientos, permitiendo procesos controlados de oxidación en los metales, estabilizados posteriormente con selladores. El hormigón aparente y la madera de pino sin tratamientos refuerzan esta sinceridad material, generando un lenguaje constructivo claro y auténtico.
Las cubiertas de piedra, los muros de gavión y la integración de vegetación en terrazas y patios contribuyen al confort térmico y enriquecen la experiencia sensorial del espacio. El manejo de las alturas evita las visuales hacia las azoteas vecinas, creando un refugio introspectivo donde la luz natural, la sombra y el paisaje se integran en equilibrio con la arquitectura.
Arquitectura: Raúl Diego Cervantes
Área de intervención: 69 m²
Año de proyecto: 2015
Construcción: Esarquitectura S.A de C.V
Calculo estructural: Ing. Asunción Martin
Fotografía: Diego Cervantes
Ubicación: Guasave, Sinaloa.










