
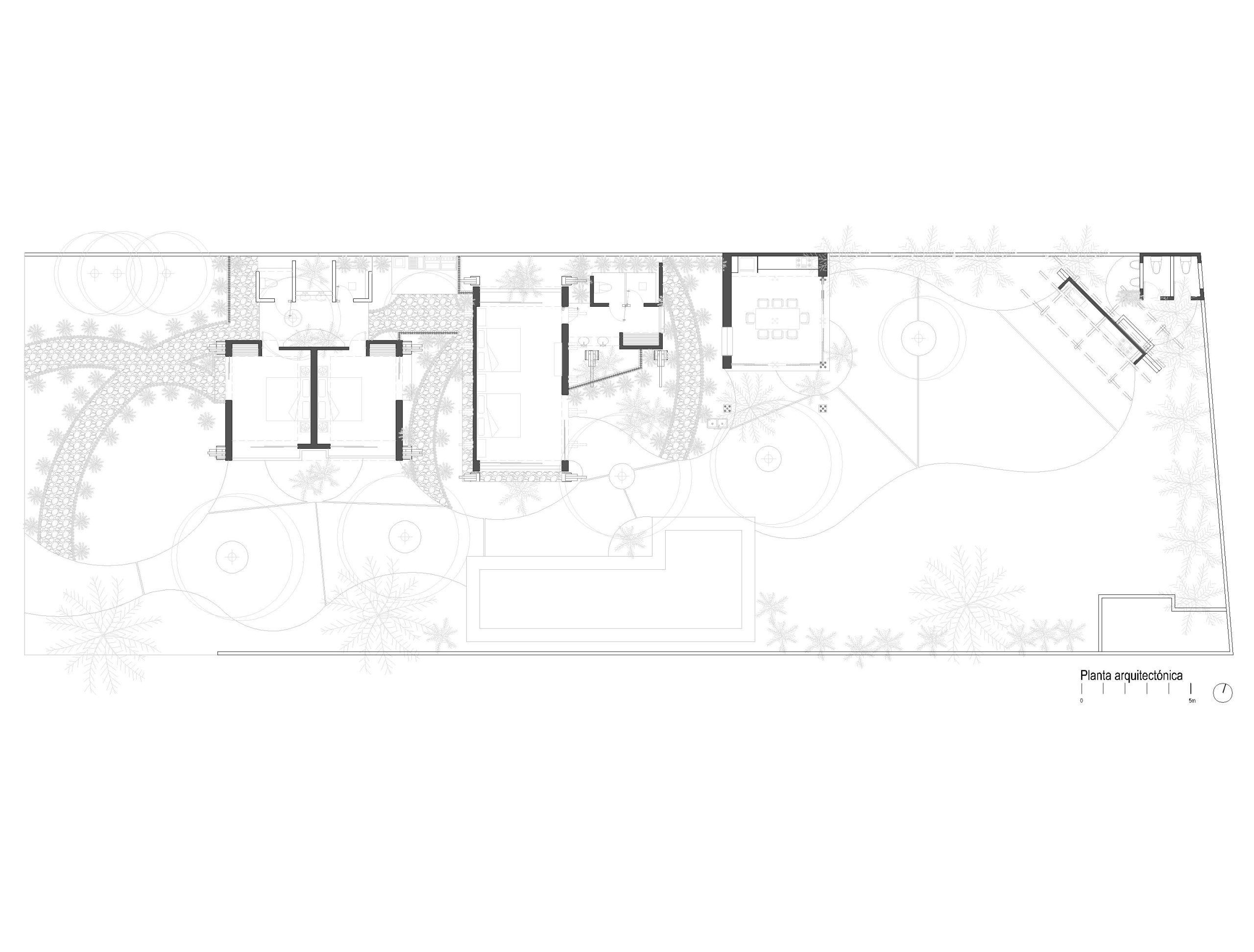
Entre Milpas es un proyecto arquitectónico sostenible que surge a partir del respeto y la integración del entorno natural existente. Los árboles y palmeras del sitio fueron conservados e incorporados al diseño como elementos fundamentales de la composición espacial.
El eje conceptual se basa en la revalorización de recursos preexistentes. Se recuperaron troncos de pino resguardados por el propietario, utilizándolos como estructuras principales en las cubiertas. Esta decisión reduce el impacto ambiental y aporta carácter, coherencia constructiva y fuerza expresiva a los espacios.
El proyecto responde al clima y contexto inmediato mediante estrategias pasivas: aberturas estratégicamente dispuestas permiten el ingreso de luz natural y favorecen la ventilación cruzada, disminuyendo la necesidad de climatización mecánica.
Asimismo, se implementa un sistema de reutilización de aguas grises provenientes de regaderas, lavabos y fregadero, destinadas al riego de jardines, promoviendo un uso responsable del agua.
Entre Milpas se concibe como un ejercicio arquitectónico que fomenta una relación más consciente entre arquitectura, naturaleza y materialidad, impulsando un estilo de vida sostenible.
Arquitectura: Raúl Diego Cervantes
Terreno: Frente 55.35 m x 18.40 de largo.
Año de proyecto: 2025
Superficie construida: 243 m2
Tipología: Casa habitación.
Construcción: Esarquitectura S.A de C.V
Fotografía: Alondra Pérez


















